I

Luogo:
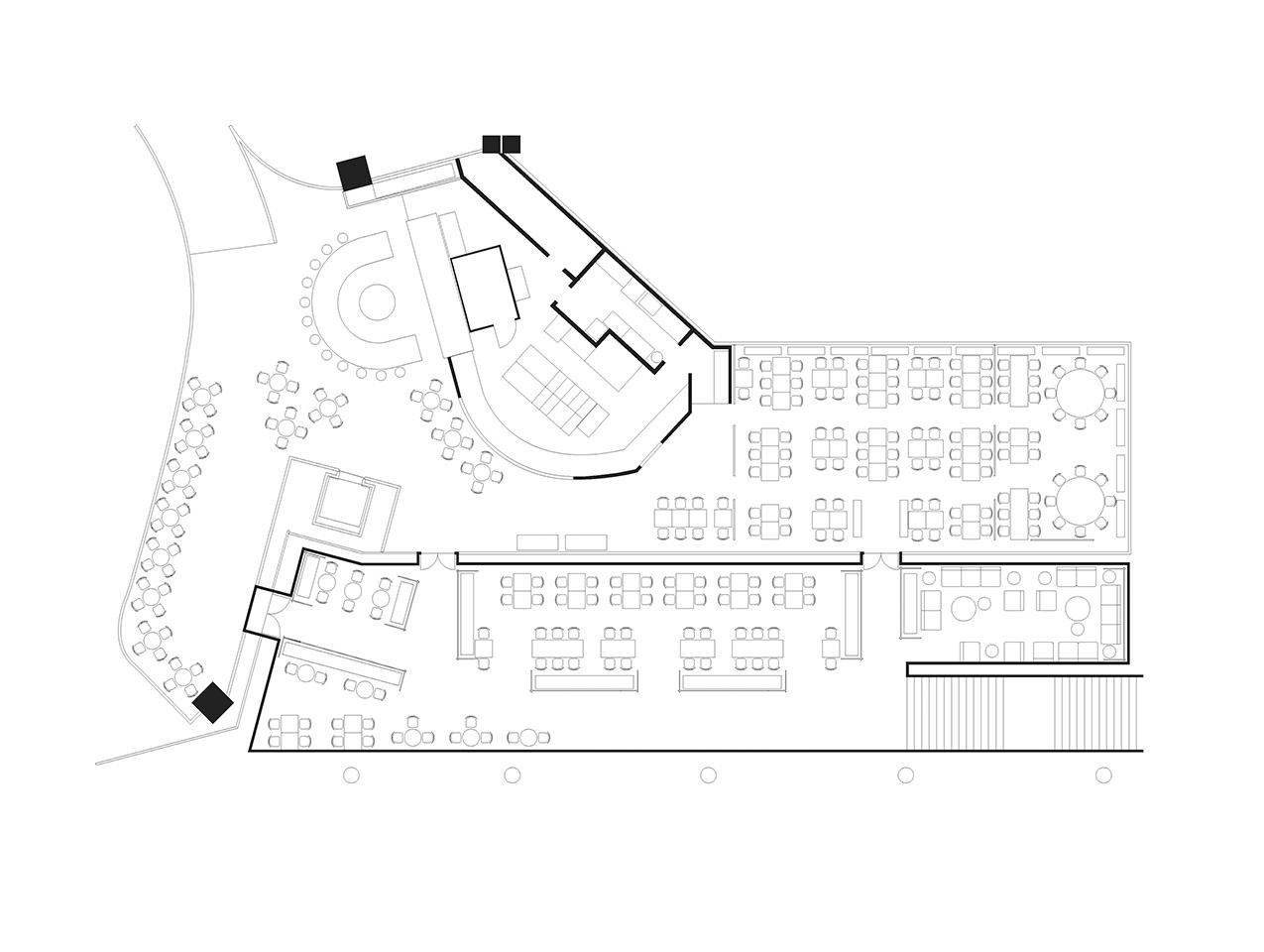
Centro commerciale Il Centro
Arese

Committente:
Iper Montebello

Cronologia:
aprile 2021 — giugno 2021

Superficie:
350 mq

Progetto architettonico:
AGA

Illuminazione:
Pentalight

Acustica:
Aratari Carola Studio

Allestimento:
Magistar

Fotografie:
Andrea Segliani